Gjennom en rekke ombyggingsprosesser kunne B&G Racketsportsenter åpne for enda mer aktivitet og flere ulike racketidretter i 2019. Etter byggeperioden er anlegget nå blitt optimalt utnyttet, der lokalene er utformet på en slik måte at man både kan spille padel, tennis, squash, bordtennis og badminton i det samme anlegget!
Anlegget er anbefalt av Norges Tennisforbund.
Prolog
I 2023 gjennomgikk utendørsfasilitetene ved B&G Racketsportsenter en omfattende oppgradering. Som et resultat har vi valgt å lage en ny artikkel som belyser disse forbedringene. Ønsker du å lese mer om det nylig renoverte utendørsanlegget, kan du finne mer informasjon i artikkelen publisert i 2024: B&G Racketsportsenter (utendørsalegg) - godeidrettsanlegg.no (Publisert 12.12.24).
Bakgrunn
Klubbens historie
Helt siden forgjengeren til Egersund racketklubb ble stiftet i 1917, Lawn-tennisklubb, har Eigersund kommune hatt et stort tennismiljø, med god aktivitet og god dugnadsånd. Samme år som opprettelsen av klubben, ble det bygget tre utendørsbaner, og medlemmene kunne strømme til det nye anlegget. I 1946 byttet klubben navn til Eigersund Tennisklubb, og sluttet seg samtidig til Norges Idrettsforbund og Norges Tennisforbund.
Flere medlemmer - behov for større anlegg
Etter god medlemsvekst over flere år, fikk klubben på slutten av 70-tallet behov for mer plass, og valgte å flytte klubbens aktivitet til Lagård, rett utenfor Egersund. Med god iver hos medlemmene og god hjelp fra kommune og lokale bedrifter, kunne man i 1981 åpne et baneanlegg med tre nye utendørsbaner, samt et klubbhus i 1984. Det nye anlegget skapte en tettere klubbfølelse, og medlemsmassen fortsatte å øke. Det ble av den grunn besluttet å bygge en tennishall med to baner innendørs, samt garderober som skulle stå ferdig i 1990. Anlegget ble gitt navnet Egersund Tennissenter for å speile at anlegget nå inneholdt mer enn bare tennisbaner.
I 2006 sto en squashhall i tilknytning til tennishallen ferdig, og hele anlegget skiftet navn til Eigersund Squash- og Tennissenter. I 2010 ble det besluttet å forandre klubbens navn til Egersund Racketklubb, for å få et navn som omfavnet mer enn bare tennis og squash. Navnebyttet viste seg å være framsynt, for i 2016 overtok Egersund Racketklubb aktiva og driften til Egersund Bordtennisklubb, og nok en racketidrett ble innlemmet i klubben. I forbindelse med ombygging fikk anlegget nytt navn: B&G Racketsportsenter.
Om klubben i dag
Egersund Racketklubb er i dag en stor organisasjon med tre avdelinger: tennis, squash og bordtennis. Klubben står også for driften av anlegget, samt ansvaret for å kjøpe inn vedlikeholdstjenester om nødvendig. For å kunne ha kapasitet til alle disse klubbene ble det i 2019 utført en stor ombygging, der anlegget har fått én ekstra tennisbane innendørs, én ny padelbane, to badmintonbaner og ny inngang. Siste oppgradering hadde en byggetid på åtte måneder, der utebanene ble brukt flittig for å holde aktiviteten i gang under byggeperioden. På grunn av slitasje etter byggeperioden, skal utendørsbanene nå oppgraderes, og om noen måneder har Egersund et komplett helårsanlegg for alle racketidretter.
Anlegget
B&G Racketsportssenter ligger i Lagård, rett utenfor Egersund by. Her er anlegget lokalisert rett ved siden av den lokale barneskolen, og hallen har umiddelbar nærhet til både ungdomsskole og videregående skole. Den nære beliggenheten til alle disse skolene har gitt et rikt bruksområde, der hallene leies av til kommunen for skolenes bruk på dagtid, mens det er klubbens medlemmer som inntar banene på ettermiddag og kveld.
Hva finner du i anlegget?
For å kunne gi et godt tilbud til alle klubbens medlemmer, og for å opprettholde muligheten for å drive egenorganisert aktivitet parallelt som det foregår organisert trening, måtte hallen oppgraderes ganske kraftig i 2019. Innendørsanlegget fremstår nå komplett etter hva klubben har behov for, og inneholder:
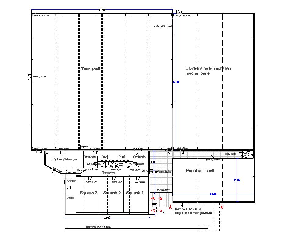
- Tre tennisbaner (Hard Court)
- Tre squashbaner (Parkett). Disse kan omgjøres til to badmintonbaner ved hjelp av motoriserte vegger.
- Én padelbane (kunstgress)
I tillegg ble det bygget et "miljørom" som fungerer som areal for sosiale sammenkomster, samt styremøter og daglig drift. Dette har gitt et sterkere samhold, da det gir mulighet for uformell mingling før eller etter trening, samt arrangerte sammenkomster for medlemmer. Et komplett garderobeanlegg har også blitt etablert, og har gjort anlegget mer aktuelt for bruk før/etter jobb, samt for skolene som bruker hallene for undervisning i gym.
Utviklingsplaner
Under den store oppgraderingsfasen av anlegget, som varte i åtte måneder, måtte utendørsanlegget ta over for mye av aktiviteten i klubben, og ble av den grunn flittig brukt. I tillegg til slitasje fra bruken under byggeprosjektet, er det nå behov for en betydelig oppgradering av utendørsbanene. Klubben har begynt å se på mulighet for renovering og er igang med å få en oversikt over kostnadene ved oppgradering av disse banene. Utendørsbanene ligger flott til, der de blant annet er skjermet for det meste av vind, samt har opparbeidet tribune tre sitteplasser i høyden.
Baneteknisk
Utendørsbanene
Når klubben nå ser på renovasjonsmuligheter for utendørsbanene, er et av deres mål å redusere behovet for vedlikehold, samt utvide sesongen slik at antall brukstimer øker. For å klare dette, er det ønskelig å gå over til syntetiske grusbaner, da slikt banedekke ikke krever valsing og vedlikehold av linjer. Syntetiske baner drenerer også så godt at de er spilleklare umiddelbart etter nedbør, i motsetning til vanlige grusbaner som kan trenge flere døgn på å tørke opp etter mye regn. Vanlige grusbaner må også jevnlig vadsles og gjennomgå oppmerking, som legger store begrensinger på banenes brukstimer. Disse banene stiller også krav til mye dugnadsarbeid for å holde de vedlikeholdt, eller høye kostnader for eventuelt innleid arbeid. Valg av syntetiske grusbaner vil derfor gjøre så grussesongen kan starte tidligere, avsluttes senere og deres gode drenasjeegenskaper medfører at det blir flere brukstimer av banene (1).
Det finnes flere ulike typer syntetiske grusløsninger, men alle har visse fellestrekk. Syntetiske banedekker kjennetegnes gjerne av at enten basen, grusen eller begge deler er konstruert av syntetisk materiale. Typisk består de av en form for kuntgressmatte som fylles med slipt, rødfarget kvartssand. Kunstgressmatta legges ofte over en membran som skal sikre god drenasje for å få vekk regnvann.
Innendørsbanene
Under oppgraderingen av anlegget i 2019, fikk alle innendørsbanene nytt dekke. Det ble da valgt å legge et dekke kalt Rebound Ace, da dette er skånsomt og behagelig, samt at responsen er god. Dekket er også svært barnevennlig, ettersom hastigheten på ballen reduseres etter kontakt med dekket. Dette har vist seg å være en suksess, der flere barn enn før mestrer spillet tidligere, på grunn av lavere hastighet på spillet.
Flerbruk
Ettersom Egersund racketklubb har blitt en klubb som skal inkludere alle racketidretter, ble det stilt store krav til flerbrukspotensialet da hallen skulle utvides. Sammen med krav om flerbruk, skulle utvidelsen også være nøktern for å komme innenfor hva som hadde blitt budsjettert. For å klare dette, ble squashhallen utstyrt med flyttbare vegger slik at squashbanene kan åpnes opp til en stor sal, der det blant annet kan spilles bordtennis. Salen brukes også som gymsal av de omkringliggende skolene, samt badminton etter avtale med klubben.
Å la ytterveggen stå var en suksess
Når det i 2019 skulle bygges en ekstra tennisbane, ble det vedtatt å la ytterveggen til hallen stå, istedenfor å rive veggen og skjøte på tak. Ved å la ytterveggen stå, beholdt man de to banene i en egen hall, samt en skillevegg til den nye banen. Dette muliggjør organisert trening på de to banene på den ene siden av skilleveggen, samt utleie av den tredje banen. Den tredje banen blir også skjermet for all lyden fra organisert trening, hvilket har vist seg å gjøre banen attraktiv for både bedriftsarrangementer og partrening.
Å la ytterveggen var også vesentlig kostnadsbesparende i forhold til å bygge slik at alle de tre banene var i samme hall. En slik løsning anbefales til andre anleggseiere som vurderer utvidelse av hall, spesielt med tanke på racketidretter hvor banestørrelsen er relativt liten.
Prosessen
Veien fram mot dagens anlegg har vært lang, hele 40 år. Det har vært krevende med stadig nye prosjekter og byggefaser, men utvikling over så lang tid gir også mulighet for mange justeringer. Racketidrettene er i konstant utvikling, der popularitet rundt ulike grener stadig endres. Det gir behov for konstant tilpasning av anlegget, der nye baner må bygges for å møte etterspørselen. Et godt eksempel på dette er den nye padelbanen. Padel er en relativt ny idrett i Norges, som har vokst raskt de siste årene, og ved å inkludere en bane for dette under byggeprosjektet i 2019, var man klar for å møte denne etterspørselen. Dette har vist seg å være en stor suksess.
Det har også vært krevende med så mange ulike byggefaser, da det har krevd mye dugnadsinnsats, samt stadige nye økonomiske innsamlingsprosesser. Dette kan være belastende på medlemsmassen, samt påvirke aktiviteten under byggefasene. Hadde ikke klubben hatt utendørsbanene i 2019, ville tilnærmet all aktivitet i klubben vært stanset i åtte måneder under byggeprosessen i 2019. Det er derfor viktig at man har et godt alternativ under store byggefaser, slik at aktiviteten får vedvare.
Erfaringer som andre kan lære av
Lager
På veien har klubben fått en rekke erfaringer, deriblant at det i den nye tennishallen burde ha blitt bygget et lager. Behovet har vist seg å være såpass stort at det nå skal bygges et lager, hvilket er mye mer kostbart å gjøre i ettertid enn i byggefasen. I tillegg må man gjennom en ny søknadsprosess med kommunen, blant annet med tanke på brannforskrifter som skal overholdes. Det er derfor mye mer kostnadsbesparende å bygge lagerrom og andre driftsrom når man allerede er i gang, i stedet for å vente til senere.
For å utnytte arealet best mulig blir lageret bygget på en slik måte at taket kan brukes til galleri/tribune for tilskuere, som også har vært en mangelvare i hallen. Å prosjektere for tribune med en gang ville ha vært hensiktsmessig, da tribuner er svært ønsket av blant annet foreldre og trenere. Tribunene er et sosialt samlingspunkt, samt at de legger rette for større arrangementer.
Merk: Lageret ble bygget etter at denne teksten ble publisert i 2021. Bildet under, av det ferdige lageret, ble lagt til i desmeber 2024 for å vise resultatet.
Feil tak
Under bygging og renovering av hallene, ble det benyttet feil takplater med for lite støydemping. Det var derfor er stort behov for å finne en løsning på dette, som endte med at det måtte ettermonteres lydisolerende plater. For å unngå dette, vil det være lurt å hente erfaringer fra liknende anlegg, enten fra forbund eller andre tennisklubber.
Kompetanse - kommunale prosesser
I selve byggeprosessen ble det opplevd at det er vanskelig å holde seg oppdatert på reguleringsplaner fra det offentlige, der informasjon og saksgang ofte er kompliserte og kan oppleves uforutsigbar. Det vil derfor være smart å innhente noen med god kompetanse rundt kommunale byggeprosesser, da dette vil spare klubben for mye tid og kostnader.
Brukerinvolvering
Hele klubben har under prosessen vært involvert, særlig på grunn av den store dugnadsinnsatsen. For å få folk til å stille på dugnad, har det vært nødvendig å involvere medlemsmassen i planleggingen, samt ta imot tilbakemeldinger og forbedringsforslag. At anlegget har blitt utarbeidet gjennom så mange år, har også gitt medlemmene gode muligheter for å skaffe seg erfaringer fra anlegget, som har kunne blitt brukt videre i neste utbyggingsfase.
Økonomi og finansiering
Hvis hele anlegget hadde blitt bygget i dag, er det anslått det ville kostet over 50 millioner kroner. Dette hadde vært svært vanskelig å få til, samt krevd lang saksgang hos kommunen. Men i og med at anlegget har blitt utvidet over flere år, har dette gitt en god fordeling av kostnadene, samt justering av anlegget etter behov.
Investeringer fra 80-tallet til 2008
Det startet med tre utendørsbaner på starten av 80-tallet, hvor 2500 dugnadstimer og tippemidler gjorde anlegget mulig. I 1984 ble det bygget et klubbhus for å samle det sosiale miljøet i klubben, hvor dugnadsinnsatser stod for den største delen av arbeidet. Klubbhuset kostet 520 000 kr, og mottok 173 000 kr i spillemidler.
I 1990 fikk anlegget for første gang to innendørs tennisbaner, hvor 1,1 millioner kroner i spillemidler samt egenkapital og lån gjorde det mulig. Det ble nok en gang lagt ned mange dugnadstimer, nærmere 2000 ble talt opp ved prosjektets slutt. Da innendørsanlegget ble utvidet med miljørom og garderober i 1993, kostet dette 500 000 kr, der kommunen støttet med ca. 70 000 kr.
I 2006 var det nok en gang på tide med en ny utvidelse, denne gangen for å gi gode fasiliteter til squashavdelingen i klubben. Det ble derfor laget et tilknyttet squashsenter med 3 baner og fokus på flerbruk. Det ble bygget motoriserte vegger, slik at det nye tilbygget kunne brukes både som 3 squashbaner, og også som en stor hall på ca. 20 x 10 meter. Dette skapte betydelig høyere kostnader, totalt rundt 3,3 millioner kroner. Samtidig gjorde det enklere å bli prioritert for spillemidler og kommunal støtte, da hallen blant annet kan brukes av de nærliggende skolene. I tillegg ble det lagt ned betydelig dugnadsinnsats, samt at klubben brukte av sin egenkapital og tok opp lån.
I 2008 måtte det eksisterende dekket i tennishallen byttes ut, noe som beløp seg til omtrent 1 million kroner. Dette ble finansiert av egne midler.
Siste ombygging i 2019
Da det i 2019 var tid for anleggets største investering til nå, var det en rekke ting som ble renovert eller bygget ut. Den totale kostnaden for dette kom på ca. 12 millioner kroner, der kostnadene ble dekket av en rekke støtteordninger:
- Spillemidler på 3,7 millioner kroner
- Momskompensasjon: 2,25 millioner kroner
- Ny hovedsponsor for anlegget: 1,2 millioner kroner
- Gave fra lokal bedrift: 1 million kroner
- Lån på 7 millioner kroner
Sponsor-salg og andre inntekter
Klubben står selv som eier av anlegget, samt driften. Driftskostnadene dekkes inn av inntekter fra sponsorsalg, samt medlemskontigent. I tillegg til en hovedsponsor, har klubben etablert egne banesponsorer for hver enkelt bane. Dette har fungert godt under sponsor-forhandlingene, da sponsoren ser at de sponser noe spesifikt, hvilket gjør det enklere å forsvare pengebruken.
I tillegg har klubben en rekke sponsorer der det er etablert avtaler om rimelige meterpriser på reklameskilt ,der prisene er såpass lave at de aller fleste sponsorene beholder sine avtaler i mange år. Dette skaper god kontinuitet i sponsorinntektene. Medlemskapsinntekter er også en stor bidragsyter, samt inngangspriser for bruk av anlegget for ikke-medlemmer. Leieavtaler med kommunen for bruk til blant annet skolegym, gir også gode og forutsigbare inntekter, men er ikke anleggets hovedinntekt.
Drift
Vaktmester
Anlegget er privateid av Egersund racketklubb, som medfører at klubben også står ansvarlig for driften av anlegget. Dette koster ca. 350 000 kr i året, og driften utføres av en vaktmester ansatt av klubben.
Hvilken kompetanse kreves
Ettersom det finnes en rekke andre tennisanlegg i Norge, samt liknende flerbruksanlegg, er kunnskap om drift av slike anlegg lett tilgjengelig. Klubben valgte derfor å ansette en vaktmester som tar av seg det daglige vedlikeholdet og rengjøring. Ettersom anlegget inneholder få krevende installasjoner, var det relativt enkelt å finne en vaktmester med riktig kompetanse, og ordningen har fungert godt. Kostnadsmessig har det også vært godt innenfor rammen av hva en klubb kan tolerere.
Bookingsystem
Anlegget er selvbetjent, der medlemmer låser seg inn ved hjelp av bookingsystemet Matchi. Dette gir god kontroll på hvem som bruker anlegget, samt lave kostnader knyttet til vakthold og liknende.
Større vedlikehold
Når det gjelder større vedlikeholdsprosjekter, gjøre disse enten på dugnad, eller ved hjelp av innleid arbeidskraft. Dette gjøres som regel i kommunikasjon med kommunen.
Nøkkelpunkter
Komplett for racketsporter - steg for steg
B&G Racketsportsenter er et komplett anlegg for alle racketsporter, der den gradvise utvidelsen har virket positivt for å skape et best mulig anlegg. På veien mot det nåværende anlegget har det blitt tilegnet en rekke erfaringer, for eksempel valget om å beholde ytterveggen når det innvendige anlegget skulle utvides med en ekstra bane. Å bygge et anlegg gjennom flere faser har også vist seg positivt med tanke på finansiering, der det har vært enklere å dekke inn mindre summer.
Flerbruk
Når et anlegg skal prosjekteres vil det også være viktig å tenke på flerbruk, særlig samarbeid med skoler og kommune. Valget om å investere i motoriserte sidevegger i squashhallen har gitt rom for to ulike idretter i samme hall, samt mulighet for gymsal for nærliggende skoler.
Med disse valgene, står anlegget igjen som et fornuftig flerbruksanlegg med gode fasiliteter og gode medlemstall!
Les mer/ referanser
Artikkelen om dette anlegget baserer seg på informasjon hentet fra klubbens nettsider, samt konversasjon med klubbens daglige leder over e-post. Vi anbefaler at du leser mer på disse sidene:
Egersund racketklubb - anleggets hjemmeside
Kildeliste
1. Norges Tennisforbund. Kunstgrus og hybridbaner [Internett]. Oslo: Norges Tennisforbund; 16.04.2020 [Hentet 11.11.2021]. Tilgjengelig fra https://www.tennis.no/files/filer/2020-filer/anlegg/2020-04-16-kunstgrus-og-hybridbaner.pdf









