På Oslo vest har de kombinert matvarebutikk med kunstgress sommerstid og isbane vinterstid. På den måten sikrer man arealeffektivitet, lavere treningsavgifter og mer treningstid. En kreativ finansieringsmodell gjorde det hele mulig!
Anlegget er anbefalt av Norges Bandyforbund.
Bakgrunn
Eckbobanen er noe helt unikt!
Sammen med Norgesgruppen har idrettslaget Ready bygget et kombinasjonsanlegg som kombinerer isflate vinterstid og kunstgress sommertid, plassert over en dagligvarebutikk.
Med det har man utnyttet arealknapphet på Oslo vest, samtidig som anlegget finansieres av leieinntekter lang tid fram i tid.
Ønsket seg forutsigbarhet
Prosjektet startet helt tilbake i 2003, da Ready over flere vintre erfarte hvor sårbart tilbudet på utendørs kunstis var, med korte sesonger og store variasjoner i kvalitet.
Klubben ønsket å sikre seg mer forutsigbarhet gjennom et robust og bærekraftig anlegg, i tillegg til å bygge mer aktivitetsareal for klubbens yngste medlemmer. Med mange medlemmer, flere bandy- og fotballag, og mye aktivitet, var det hard knapp om tid på is og kunstgress.
Ting tar tid, og det var først knappe 20 år seinere at spaden ble satt i jorda. Resultatet er et kombinasjonsanlegg for bandy og fotball, der samme flate brukes til bandy om vinteren og fotball om sommeren. Under ligger dagligvarebutikken.
Anlegget
Baneflate og funksjon
Eckbobanen er bygget som en kombinasjonsflate på 45 x 82 meter, dimensjonert som en barne- og ungdomsbane, og tilsvarer én 9’er-bane eller tre 7’er-baner. Banen er definert som en barne- og ungdomsbane og er ikke godkjent som minimums-ellverbane, noe som har vært akseptert både i dialogen med Oslo kommune og i klubbens egne prioriteringer, fordi hovedmålgruppen er barn opp til og med 12 år.
Flaten brukes som kunstisflate om vinteren og kunstgressbane resten av året, og hele konstruksjonen er lagt på taket over dagligvarebutikken.
Oppbygging av bane og dekke
Kombinasjonsbanen er bygget lagvis for å kunne fungere både som fotballbane og kunstisbane, samtidig som den ligger over et oppvarmet rom.
- Øverst: Kunstgress med olivensten som ifyll.
- Under gresset: Lag med lettvektsstein og sand-blanding som bærelag.
- Under bærelaget: Et avretningslag som sørger for jevnhet.
- Under avretningslaget: En «pad», en sporlagt plate der kjølerørene til kunstisanlegget ligger, med nøye valgt tykkelse og dreneringsevne for at vannet skal fryse jevnt, holde på fuktighet i øvre lag og hindre at kulden trekker for langt ned (for å redusere energiforbruk).
- Under padden: Omtrent én meter med ulike fraksjoner masser/steinlag med flere lag av drenerende masser og duker som leder vannet videre ned.
- Nederst: Selve betongdekket/taket over bygget fungerer som siste dreneringsnivå, men mye av vannet tas i lagene over slik at ikke alt treffer betongen.
En sentral utfordring har vært å sikre at vann håndteres riktig i alle faser: Når det regner før isen har satt seg, renner mye av vannet gjennom konstruksjonen før det fryser, og ved snøsmelting om våren skal vannet kunne dreneres ut uten å skape is- og vannproblemer rundt anlegget. Derfor er det lagt inn flere dreneringsnivåer og filtre, blant annet granulatfiltre, selv om klubben har valgt et grønt ifyll og ikke gummigranulat.
Valg av ifyll og barnebanefokus
Som ifyll i kunstgresset er det brukt olivensten. Klubben vurderte gummigranulat, men lot være å bruke det, både av hensyn til kommende regelverk for gummigranulat på kunstgressbaner, og fordi det ville kunne utløse krav om kostbare utskiftninger før banen er gammel nok til nye spillemidler (en kunstgressbane må ha levetid over ti år for å utløse retten til spillemidler).
Siden banen primært er for barn, har Ready akseptert at underlaget kan være noe hardere enn på baner tilpasset seniorfortball, mot at løsningen er mer robust, miljømessig bedre og økonomisk forsvarlig over tid.
Kombinasjonsoppbyggingen, med kunstgress, ifyll, sand, pad med kjølerør, drenerende og isolerende lag, er et resultat av omfattende dialog med fagmiljøer på kunstgress, kunstis, drenering og isolasjon.
Teknisk kompleksitet og erfaringsoverføring
Eckbobanen skiller seg teknisk fra vanlige kunstgress- og kunstisanlegg ved at banen både ligger på tak over et varmt rom, og samtidig skal fungere som kombinasjonsflate for is og fotball. Klubben og prosjektet fant ikke tilsvarende anlegg i Europa da de hentet inn erfaringer, og måtte derfor sette sammen løsninger fra flere fagområder.
Det er hentet inn kompetanse fra leverandører og fagpersoner på kunstgress, kunstis, drenering, isolasjon og konstruksjon, og ulike alternativer for type pad, gress, ifyll, tykkelser på lagene og dreneringsløsninger er vurdert opp mot hverandre.
Målet har vært å få en konstruksjon der isen fryser mest mulig jevnt i de øverste lagene, samtidig som det ikke blir for mye kulde og fuktighet som går ned mot taket og skaper kondens, energitap eller risiko for skader.
Drift, energi og tekniske rom
Driften av kunstisanlegget er den klart største løpende kostnaden, hovedsakelig knyttet til strøm til kjøleanlegget. Klubben anslår de årlige strømkostnadene til rundt 650–700 000 kroner, med noe strømstøtte tilbake, og i tillegg kommer kostnader til ismaskiner, traktorer, knivsliping og annet driftsutstyr som må holdes i kontinuerlig drift gjennom vintersesongen.
Selve bygget har 11–12 serviceavtaler knyttet til blant annet heis, ventilasjon, sprinkler, brannalarm og teknisk utstyr, som samlet utgjør 150–200 000 kroner årlig i tillegg til forsikringer. Alt dette inngår i et driftsbudsjett på om lag 2,3 millioner kroner per år for anlegget. Kjøleanlegget leverer samtidig overskuddsvarme som gjenbrukes til å varme opp bygget og til snøsmelteanlegg i trapper opp til anlegget og til butikken, som en del av målet om å gjøre anlegget mest mulig «grønt».
Driften av isen ivaretas av eget vinterdriftspersonell og en gruppe på 10–12 frivillige som er sertifisert for å kjøre ismaskiner og traktorer, mens tekniske anlegg som kjølemaskineri og heis driftes gjennom eksterne serviceavtaler.
Klubben har organisert økonomien slik at anlegget driftes gjennom et eget selskap (AS), det gjør at kostnader, sponsormidler og avkastning fra fond håndterer driften uten at det slår direkte inn i idrettslagets øvrige økonomi og treningsavgifter.
Anlegget er støttet av Eckbos legat, der de er bevilget 12,2 millioner kroner. Deler av summen er satt i fond, der noe av avkastningen brukes til drift av anlegget.
Innendørs funksjoner under banen
Under banen er det bygd fire garderober, to dommergarderober, lager og et treningssenter fordelt på et treningsrom med tredemøller og et styrkerom. Dette erstatter et eldre bomberom som tidligere fungerte som treningsrom, og gir klubben langt bedre kapasitet til å håndtere både kamp- og treningsaktivitet på anlegget og i gymsalen, med garderober for begge kjønn og flere grupper samtidig.
Treningsarealene brukes både til spesifikk trening for utøvere som satser, og til mer generell basistrening for ungdom som ønsker å bli i miljøet uten å satse fullt, for eksempel gjennom hobbylag og lavterskelaktivitet.
Hele det nye anlegget er universelt utformet, med heis, tilrettelagte garderober, dusjer og toaletter, og ramper som håndterer nivåforskjellen på rundt 1,4 meter opp til banen, slik at både medlemmer og øvrige brukere med ulike funksjonsnedsettelser kan ta seg inn og rundt på anlegget.
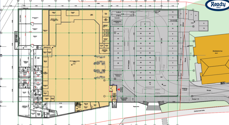
Salgsflaten i den nye butikken er på 1 350 kvm, og det er etablert 45 parkeringsplasser under idrettsbanen i front av butikken.
Prosessen
Drømmen om prosjektet går tilbake til rundt 2003–2004, da Ready begynte å jobbe med ideen om et anlegg som kunne gi mer forutsigbar vinteraktivitet enn tradisjonell utendørs kunstis. Prosjektet gikk gjennom mange runder før det til slutt lot seg realisere, ved at Eckbos legat bevilget den avgjørende pengesummen. At man også fikk til en avtale med Norgesgruppen var avgjørende.
Siste forsøk og avgjørende legatstøtte
Et siste, mer målrettet, forsøk ble igangsatt i 2018. Da heller ikke det første budsjettet gikk opp, ble det åpnet en mulighet til å søke støtte fra Eckbos legat. Ready fikk innvilget om lag 12,2 millioner kroner derfra, og dette omtales som den «siste brikken» som gjorde det mulig både å realisere selve anlegget og sikre økonomi til videre drift.
Midlene fra legatet gikk inn i prosjektet, mens andre midler ble bygget opp i et fond som i dag gir avkastning og brukes til å dekke deler av de årlige driftskostnadene.
Avtale med Oslo kommune og Norgesgruppen
Parallelt med dette arbeidet Ready med eierskap og bruksrett til tomten. Klubben eide tidligere hele Gressbanen, men overdro anlegget til Oslo kommune rundt 1982, og måtte nå kjøpe tilbake den delen av tomten som skulle brukes til næring (butikken), mens idrettsdelen ble tildelt Ready vederlagsfritt, med krav om at den skulle driftes som et kommunalt anlegg etter kommunale retningslinjer.
Oslo kommune gjennomførte en tomtevurdering, og Ready måtte betale litt over 12 millioner kroner for butikktomten, noe klubben ikke hadde midler til uten en ekstern partner. Etter at Ready hadde bedt Oslo kommune om et nytt forsøk på å realisere prosjektet, kom Norgesgruppen inn som samarbeidspartner og så at prosjektet kunne være gjennomførbart.
I 2021 ble det signert en avtale der Norgesgruppen forhåndsbetalte 50 års leie og tok selve byggekostnaden for hele prosjektet, som til slutt endte på rundt 186 millioner kroner, betydelig høyere enn det opprinnelige anslaget på 120–130 millioner, blant annet på grunn av kraftig prisvekst på materialer.
Leien avskrives over 50 år, og denne modellen ble valgt for å redusere risikoen for Ready, som da slapp å ta opp et stort lån og stå alene i en situasjon med kraftig kostnadsøkning.
Planlegging, prosjektorganisering og bygging
Formelt sto klubben som byggherre, men Ready hentet inn prosjektleder fra Norgesgruppen som fulgte opp entreprenøren på fulltid gjennom byggeprosjektet. I tillegg hentet klubben inn ekstern bistand fra blant annet et advokatfirma for å sikre kontrakter, kvalitet og økonomistyring, samtidig som styret stilte med sterke ressurser innen jus, økonomi og byggeteknikk.
På den tekniske siden hadde Ready og prosjektet dialog med «alt som kryper og går» av fagmiljøer på kunstgress, kunstis, drenering, isolasjon og konstruksjon, fordi kombinasjonen – kunstgress med grønt ifyll, kjøleanlegg og varmt rom under – ikke fantes som standardløsning andre steder. Man vurderte ulike typer pad, gress, ifyll, dreneringsoppbygging og isolasjon, og tok beslutninger fortløpende for å få et system som både fungerer idrettslig og er mulig å drifte økonomisk over tid.
Underveis i byggingen slo krigen i Ukraina og den generelle prisveksten inn, og materialkostnader økte så mye at totalkostnaden steg med 40–50 millioner kroner i forhold til de første kalkylene. Dette utfordret regnestykkene særlig på Norgesgruppen sin side, men avtalen ble likevel stående, og prosjektet ble gjennomført innenfor den nye kostnadsrammen.
Ferdigstillelse og oppstart av drift
Når anlegget nå er i full drift, har Ready et eget aksjeselskap som drifter Eckbobanen, med driftsbudsjett på rundt 2,3 millioner kroner i året, finansiert gjennom avkastning fra fond, noe spons, og effektiv drift.
Det første hele regnskapsåret med full drift er nylig gjennomført, og klubben opplever at de – med dagens modell – kan drive anlegget i mange år fremover, gitt at det ikke kommer uforutsette, svært store kostnader.
Økonomi og finansiering
Totalkostnad
- Hele prosjektet (butikk + idrettsanlegg) endte på rundt 186 millioner kroner, mot et opprinnelig anslag på 120–130 millioner.
Legatmidler
- Eckbos legat ga ca. 12,2 millioner kroner, som var avgjørende for at prosjektet lot seg realisere og drifte videre.
Tomtekjøp
- Ready måtte kjøpe tilbake næringstomten (butikkdelen) fra Oslo kommune for litt over 12 millioner kroner, mens idrettsdelen ble tildelt vederlagsfritt, men skal driftes som et kommunalt anlegg.
NorgesGruppen-avtalen
- NorgesGruppen forhåndsbetalte 50 års leie og tok byggekostnaden, som avskrives over 50 år.
- Modellen gjør at Ready slipper å ta opp stort lån, men har en «hard» avtale der de må følge kommunale retningslinjer og har begrensede muligheter til kommersiell drift på idrettsdelen.
Fond og avkastning
- Ready har bygget opp et fond der kapitalen gir 5–7 prosent årlig avkastning (ved forsiktig plassering), som sammen med sponsormidler brukes til å dekke driftskostnader.
Årlige driftskostnader
- Totalt driftsbudsjett for anlegget er ca. 2,3 millioner kroner per år.
- Strøm til kjøleanlegg utgjør ca. 650–700 000 kroner årlig, med noe strømstøtte tilbake.
- Serviceavtaler på tekniske anlegg (heis, sprinkler, brannalarm m.m.) ligger på 150–200 000 kroner i året, i tillegg til forsikringer og øvrige kostnader.
Organisering
- Anlegget driftes gjennom et eget aksjeselskap, slik at kostnader, spons og avkastning håndterer drift uten å slå direkte inn i treningsavgiftene i idrettslaget.
Drift
Driften av Eckbobanen er organisert rundt tre hovedgrep: eget vinterdriftsteam, omfattende teknisk oppfølging og en «gå‑i‑null»-økonomimodell. Ready har egne ansatte som har ansvar for vinterdrift og preparering av isen, supplert av 10–12 frivillige som er sertifisert til å kjøre ismaskiner og traktorer gjennom sesongen.
De tekniske anleggene – spesielt kjølemaskineriet og heisen – følges opp gjennom eksterne serviceavtaler, og totalt har anlegget 11–12 slike avtaler på heis, ventilasjon, sprinkler, brannalarm og andre systemer, i tillegg til forsikringer.
Strøm til kjøleanlegget er den klart største enkeltposten i driftsbudsjettet, med rundt 650–700 000 kroner i året, mens det samlede driftsbudsjettet for anlegget ligger på cirka 2,3 millioner kroner årlig.
Driften er lagt inn i et eget aksjeselskap som håndterer alle kostnader, sponsormidler og fondsavkastning, slik at målet er at anlegget skal bære seg selv økonomisk uten å presse opp treningsavgiftene i klubben – så lenge man i praksis går i null over tid, regnes driften som vellykket.
Nøkkelpunkter
- Eckbobanen er unikt kombinasjonsanlegg der samme bane brukes til kunstis om vinteren og kunstgress om sommeren, plassert på taket over en dagligvarebutikk og parkeringsanlegg.
- Baneflaten er 45 x 82 meter, dimensjonert som barne- og ungdomsbane (én 9’er eller tre 7’er-baner), og er bevisst ikke godkjent som elverbane fordi hovedmålgruppen er barn opp til 12 år.
- Selve baneoppbyggingen er teknisk avansert, med lag av kunstgress med olivenstein, bærelag, avretningslag, kjølerør-pad og flere drenerende og isolerende lag over betongtaket, for å sikre jevn is, god drenering og lavest mulig energibruk.
- Under banen ligger det garderober, treningssenter, tekniske rom og en dagligvarebutikk på rundt 1 350 kvm, samt om lag 45–50 parkeringsplasser, og hele anlegget er universelt utformet med heis, ramper og tilrettelagte garderober.
- Prosjektet har en lang historikk fra idé på begynnelsen av 2000‑tallet til åpning i 2024, og lot seg realisere gjennom et spleiselag der Eckbos legat bidro med 12,2 millioner kroner og NorgesGruppen forhåndsbetalte 50 års leie og tok byggekostnaden på rundt 180–186 millioner kroner.
- Driften ligger i et eget aksjeselskap med årlige kostnader på rundt 2,3 millioner kroner, der de største postene er strøm til kjøleanlegg og serviceavtaler, finansiert gjennom fondsavkastning, leieinntekter og sponsorer, slik at idrettslaget kan holde treningsavgiftene nede.
Les mer / referanser
Denne forbildeanlegg-artikkelen er skrevet i samarbeid med Ready IF og Norgesgruppen. Gode idrettsanlegg takker så mye for hjelpen!

